Zuhause für die ganze Familie - großzügige Maisonette mit Südbalkon & Gartennutzung
Objektart
Adresse
Objektdaten
Informationen
Ausstattung
Details
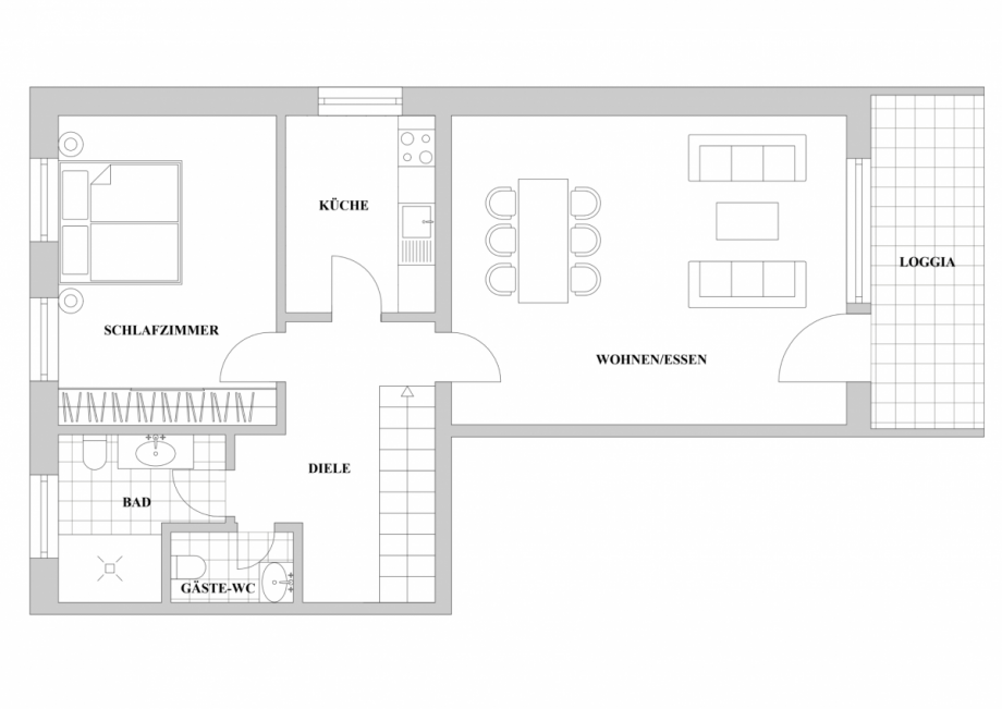
Diese hochwertig ausgestattete Maisonette-Wohnung besticht durch ihr großzügiges Raumangebot, eine durchdachte Grundrissgestaltung und ein freundliches Wohnambiente für Ihre Familie.
Die obere Wohnebene umfasst den lichtdurchfluteten Wohn- und Essbereich, ein ruhiges Schlafzimmer sowie ein modernes Duschbad mit bodengleicher Walk-in-Dusche und ein separates Gäste-WC.
Vom großzügigen Wohn- und Essbereich aus gelangen Sie direkt auf den überdachten Südbalkon mit Blick in den Gemeinschaftsgarten. In Wohn- und Schlafzimmer sowie im Flur ist derzeit Laminat verlegt, unter dem sich hochwertiges Parkett befindet.
Die separate Küche ist mit einer hochwertigen Einbauküche ausgestattet, die für 20.000 EUR übernommen werden kann.
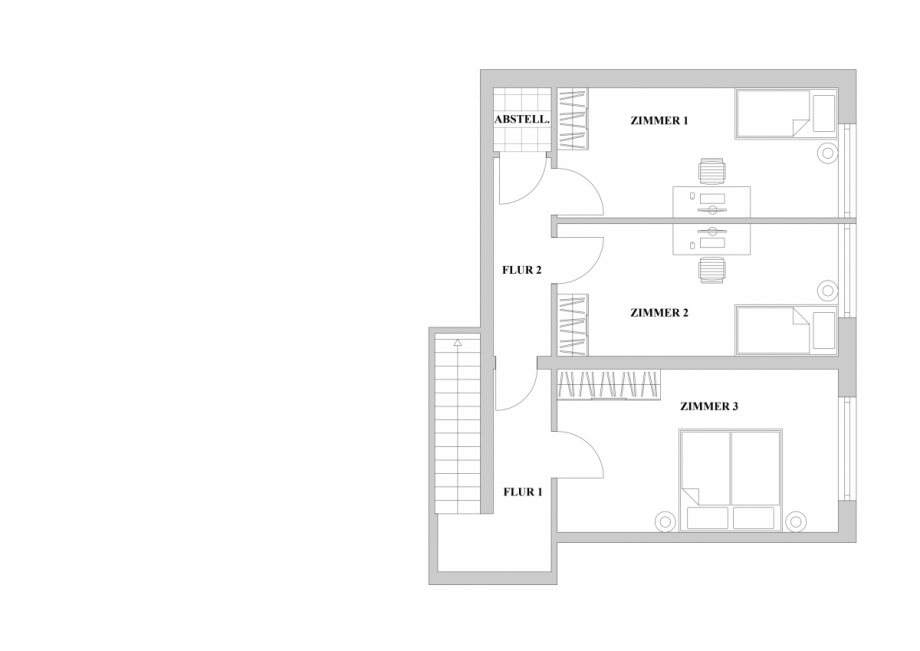
Über eine Treppe erreichen Sie die untere Ebene der Wohnung. Hier stehen drei gut geschnittene, helle Kinder-, Arbeits- oder Gästezimmer mit großen Fenstern und elektrischen Rollläden zur Verfügung. Ein praktischer Abstellraum ergänzt das Raumangebot.
Zur Wohnung gehört zudem eine eigene Einzelgarage auf der rückwärtigen Grundstücksseite.
Am Gebäude wurden in den vergangenen Jahren unter anderem folgende Maßnahmen durchgeführt:
Erneuerung des Daches inklusive Dämmung (2016)
Sanierung der Balkone (2014)
Installation einer neuen Zentralheizung (2024)
Auch innerhalb der Wohnung erfolgten umfangreiche Modernisierungen:
Sanierung von Bad, Gäste-WC und Elektrik (2012/2013)
Austausch der Fenster (2010/2013)
Überarbeitung von Böden und Wänden (2013)
Gesamtkaufpreis: 519.000 EUR
(499.000 EUR für die Wohnung zzgl. 20.000 EUR für die Einbauküche)
-----------------------------
This stylishly furnished duplex apartment impresses with its ample space, clearly defined layout, and comfortable living environment. It offers the ideal conditions for families who want flexible living arrangements while still enjoying comfort.
The upper level features a bright living area, a quiet bedroom, a modern bathroom with a walk-in shower at floor level, and a separate guest restroom. The spacious living and dining room opens directly onto the covered south-facing balcony with a view of the garden. Laminate flooring is currently installed in the living room, bedroom, and hallway; high-quality hardwood flooring lies beneath it.
The separate kitchen features a high-quality built-in kitchen, which can be purchased for 20,000 EUR.
A staircase leads to the lower level. Here, there are three well-proportioned, bright rooms with large windows and electric shutters-ideal as children´s rooms, a home office, or guest rooms. The space is complemented by a practical storage room.
A private garage at the rear of the property is also included with the apartment.
The following improvements, among others, have been made to the building in recent years:
o Roof, including insulation, replaced (2016)
o Balconies renovated (2014)
o New oil-fired central heating system (2024)
In the apartment itself:
o Bathroom, guest toilet, and electrical systems modernized (2012/2013)
o Windows replaced (2010/2013)
o Floors and walls renovated (2013)
Total purchase price: 519,000 EUR
(499,000 EUR for the apartment plus 20,000 EUR for built-in kitchen)
- Hochwertiger Vinylboden in der oberen Ebene; das darunterliegende Parkett kann freigelegt werden
- Moderne Einbauküche, die für 20.000 EUR mitveräußert wird
- Stilvolles Duschbad mit großzügiger Walk-in-Dusche und Fenster
- Separates Gäste-WC
- Sonniger Süd-Balkon mit Blick in den Gemeinschaftsgarten
- Drei helle Zimmer in der unteren Ebene mit großen Fensterflächen
- Elektrische Rollläden
- Praktischer Abstellraum innerhalb der Wohnung
- Eigene Garage auf dem Grundstück
- Bad, Gäste-WC und Elektrik modernisiert (2012/2013)
- Erneuerung der Fenster (2010/2013)
- Überarbeitung der Böden und Wände (2013)
- Neue Öl-Zentralheizung (2024)
------------------------
- High-quality vinyl flooring on the upper level; the original hardwood flooring below can be exposed
- High-quality built-in kitchen included in the sale for 20,000
- Stylish bathroom with a large walk-in shower
- Separate guest restroom
- Covered south-facing balcony with a view of the garden
- Three bright rooms on the lower level, each with large windows
- Electric shutters on the windows
- Convenient storage room
- Private garage
- Bathroom, guest toilet, and electrical systems modernized (2012/2013)
- Windows replaced (2010/2013)
- Floors and walls renovated (2013)
- New oil-fired central heating system (2024)
Die Immobilie befindet sich in attraktiver und gefragter Wohnlage im Meerbuscher Stadtteil Lank-Latum und überzeugt durch ein gewachsenes, lebendiges Umfeld. Das charmante Ortszentrum mit seinem Marktplatz ist in wenigen Gehminuten erreichbar und bietet eine vielfältige Auswahl an Cafés, Restaurants und kleinen Geschäften.
Sämtliche Einrichtungen des täglichen Bedarfs liegen ebenfalls in bequemer fußläufiger Entfernung und gewährleisten eine hohe Lebensqualität im Alltag.
Die Verkehrsanbindung ist ausgezeichnet: Der Flughafen Düsseldorf ist in kurzer Zeit erreichbar, was insbesondere für Berufspendler und Vielreisende von großem Vorteil ist. Zudem sind die Autobahnen A44 und A57 schnell zu erreichen und ermöglichen eine zügige Anbindung nach Düsseldorf sowie an die umliegenden Regionen.
Insgesamt zeichnet sich die Lage durch die gelungene Kombination aus ruhigem Wohnen, urbaner Nähe und hervorragender Infrastruktur aus.
Der Gesamtkaufpreis der Wohnung beträgt 519.000 EUR und setzt sich wie folgt zusammen:
499.000 EUR Kaufpreis Wohnung + 20.000 EUR Kaufpreis Einbauküche
Downloads
Energieausweis (Verbrauchsausweis)
102,20 kWh / (m²*a) Energieverbrauchskennwert
102,20 kWh / (m²*a) Energieverbrauchskennwert
102,20 kWh / (m²*a) Energieverbrauchskennwert
Weitere Informationen
| Wesentlicher Energieträger | Öl |
| Energieausweis Ausstelldatum | 2024-08-14 |
| Energieausweis gültig bis | 13.08.2034 |
| Energieausweis Jahrgang | ab dem 1.5.2014 |
| Energieausweis Werteklasse | D |
| Energieausweis Baujahr | 1970 |
| Energieausweis Gebäudeart | Wohngebäude |
| Heizung | Zentralheizung |
| Befeuerung | Öl |
