Objektart
Adresse
Objektdaten
Informationen
Ausstattung
Details
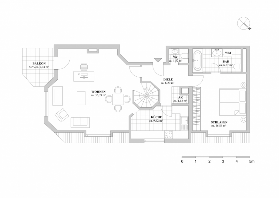
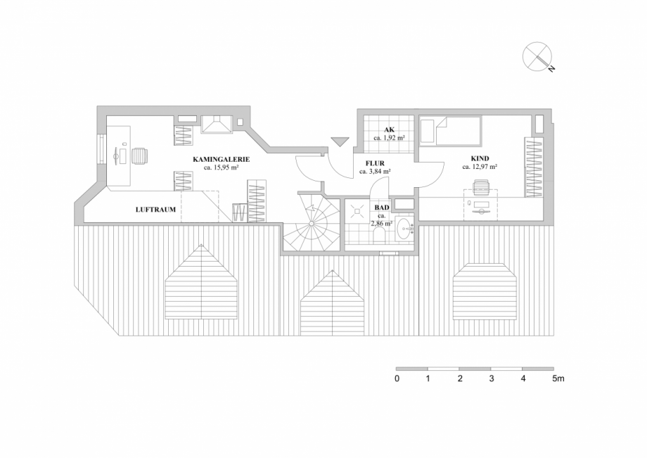
Die angebotene, hochwertige Maisonette-Wohnung überzeugt durch ihre vollständige Möblierung sowie ihre erstklassige Lage in Düsseldorf-Niederkassel. Die elegante 3-Zimmer-Wohnung erstreckt sich über zwei Ebenen und befindet sich in der dritten Etage eines äußerst gepflegten Mehrfamilienhauses. Ein Aufzug gewährleistet einen komfortablen und barrierearmen Zugang.
Die Wohnung vereint stilvolles Wohnen mit einer durchdachten Raumaufteilung und schafft durch ihre geschmackvolle Möblierung sowie ausgewählte Ausstattungsdetails eine besonders angenehme Wohnatmosphäre. Ein Balkon bietet zusätzlichen Raum im Freien und lädt zum Verweilen ein, während die integrierte Galerie den offenen Charakter der Maisonette unterstreicht und ein besonderes Raumgefühl schafft.
Dank der begehrten Lage in Düsseldorf-Niederkassel profitieren künftige Mieter von einer hervorragenden Infrastruktur, kurzen Wegen in die Innenstadt sowie einem ruhigen und zugleich gehobenen Wohnumfeld. Die Wohnung eignet sich ideal für anspruchsvolle Pendler oder kleine Familien, die Wert auf Komfort, Stil und eine hochwertige Wohnlage legen.
- Hochwertig und vollständig möbliert
- Moderne Einbauküche mit vollständiger Ausstattung
- Inklusivmiete
- PKW-Stellplatz vorhanden
- Balkon mit angenehmem Außenbereich
- Galerieebene mit offenem Raumkonzept und besonderem Wohncharakter
Die Immobilie befindet sich in attraktiver und ruhiger Wohnlage im begehrten linksrheinischen Stadtteil Düsseldorf-Niederkassel. Die Umgebung zeichnet sich durch eine gewachsene Nachbarschaft, ein gepflegtes Erscheinungsbild sowie eine hohe Wohnqualität aus.
Ein besonderes Highlight ist die Nähe zum Rheinufer, das in wenigen Minuten mit dem Fahrrad erreichbar ist und zu ausgedehnten Spaziergängen sowie Radtouren mit Blick auf den Rhein einlädt. Darüber hinaus profitiert die Lage von der unmittelbaren Nähe zu einem der bedeutendsten Bürostandorte Düsseldorfs, dem Seestern, wodurch sich kurze Arbeitswege ergeben und zeitintensive Pendelstrecken vermieden werden können.
Niederkassel verfügt zudem über eine sehr gute Infrastruktur: Sämtliche Einkaufsmöglichkeiten zur Deckung des täglichen Bedarfs, gastronomische Angebote sowie weitere Einrichtungen des täglichen Lebens sind bequem erreichbar und unterstreichen die Attraktivität dieses gefragten Wohnstandorts.
