Objektart
Adresse
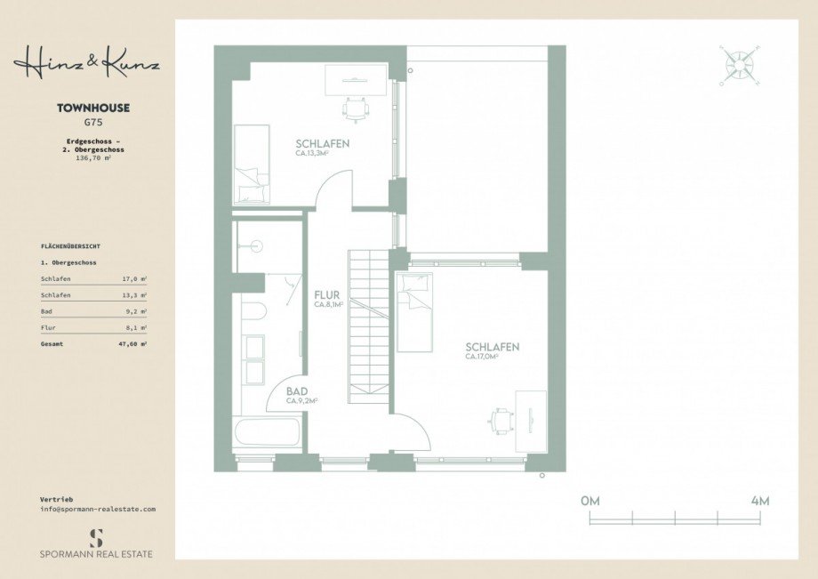
Objektdaten
Informationen
Ausstattung
Details
In Flingern-Nord, einem der beliebtesten Quartiere Düsseldorfs, entstehen 72 Eigentumswohnungen und 4 Stadthäuser. Mit Haus Heinrich und Haus Konrad sowie den im Innenhof liegenden Stadthäusern treffen Historie und Lage auf beste zeitgenössische Architektur und Bauausführung. Haus Heinrich vertritt mit seiner Gründerzeitfassade die Historie, während Haus Konrad, der moderne Neubau entlang der Schwelmer Straße mit 54 Wohnungen für die zeitgenössische Architektur steht. Zuletzt bieten die vier Stadthäuser im Innenhof ein geschütztes Refugium für die ganze Familie, versorgt durch die Erzeugnisse des "urban gardenings" auf der eigenen Dachterrasse.
"Hinz&Kunz" steht für eine durchweg hochwertige, moderne und smarte Ausstattung. Den Anfang macht bereits die äußere Gestaltung mit der ansprechenden Architektur, verklinkerten Fassaden und hochwertigen Hauseingangsbereichen, nachfolgend die Details:
- Beleuchtungskonzept für Fassade, Außenbereiche und Treppenhäuser
- Stilvoll gestaltete Hauseingänge und Treppenhäuser
- Aufzüge
- Fußbodenheizung mit Einzelraumsteuerung
- Hochwertige Fenster mit Dreifachverglasung
- Elektrisch betriebene Raffstoreanlagen
- Wände in Glattputzoptik
- Edle Parkettböden in Fischgrät oder als Diele (Scheucher)
- Hochwertige, moderne Bäder
- Bodengleiche Duschen
- Großformatige Fliesen (Living ceramics, Serie "Gubi")
- Unterputz-Armaturen (Ideal Standard, Serie "Joy")
- Moderne Schalter und Steckdosen (Busch-Jäger)
- Homeway-Multimediaverteilung
- Bluetooth-Lautsprecher in den Bädern (Busch-Jäger)
- Videogegensprechanlage
- Hauseigene Paketstation
- Tiefgarage
- Ladeanschlüsse für E-Autos
- Teilweise klimatisiert
- Energieeffizient nach GEG
- Kellerräume mit Stromanschluss
Flingern-Nord, einer der gefragtesten Wohnstandorte Düsseldorfs, liegt östlich des Stadtzentrums. Kaum ein Stadtteil ist facettenreicher, so bietet Flingern-Nord eine hervorragende Infrastruktur, eine ausgeprägte Kunst- und Kulturszene und ein vielfältiges gastronomisches Angebot. Das Düsseldorfer Stadtzentrum liegt nur wenige Minuten entfernt, zugleich erreicht man in kürzester Zeit den beliebten Grafenberger Wald. Hinz&Kunz entsteht inmitten einer gewachsenen Nachbarschaft. Alle Erledigung des täglichen Bedarfs sind fußläufig erreichbar, der Anschluss an den ÖPNV befindet sich in unmittelbarer Nähe.
For international customers: We speak english - please don't hesitate to contact us!
